Loteamento Jardim Ana Cristina II – Lote em Jandira a venda
Jardim Ana Cristina(votupoca), Barueri, São Paulo

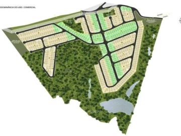
Loteamento Jardim Ana Cristina jandira II
Medidas
Terreno Área Total: 125m²Terreno Frente: 5m
Terreno Fundo: 5m
Terreno Esquerda: 25m
Terreno Direita: 25m
Localização
Compartilhe com seus amigos:
Descrição
Loteamento Jardim Ana Cristina II Loteamento Aberto e Planejado.
Terreno Disponível a Venda, Sucesso de Vendas, a partir de 125m²..
Vamos Realizar esse Sonho? Fale Comigo para Mais Detalhes!
Características do Terreno:
Metragem: 125m² de área.
Dimensões: 5m x 25m
Topografia: Leve Declive.
Condições para Negociação:
Terreno R$187.500,00
Entrada R$ 35.000.00
Saldo em: 96 mensais de R$ 2.636,00.
Documentação: (Inclusos Escritura, ITBI e Registro).
Reajuste Anual Variação IPCA.
Ficha Técnica:
Empreendimento: Bairro Jardim Ana Cristina I e II.
Tipo: Misto ( Residencial e Comercial).
Lote a partir de: 125m² a 383m².
Endereço: Estrada das Pitas, 899 - Parque Viana, Barueri - SP, 06449-300.
Características do Bairro Jardim Ana Cristina:
Bairro Planejado - Prontos para Construir, Possibilidade de uso tanto para fins Residenciais quanto Comerciais. Bairro já Conta com Infraestrutura Completa, Ruas Pavimentadas e asfaltadas, iluminação Pública, Rede de Esgoto e Galeria de Aguas Fluviais, áreas Verdes Preservadas.
Conheça alguns dos serviços essenciais que o bairro oferece:
Centro Comercial Ana Cristina, Academia Smart Fit, Supermercado Don e Padaria, Mecânicas, Veterinário e Deposito de material de construção. Terminal de ônibus, Escolas, Creches, Posto de Saúde ao Lado.
Localização Estratégica: Região em plena valorização e desenvolvimento. Fácil acesso ao Centro de Barueri e Rodovia Raposo Tavares.
Todas as informações deste Lote, poderá sofrer alteração sem o prévio aviso, verifique disponibilidade e valores atualizados de valorização do mesmo.
O que tem perto?
- Açougue, Feiras e Supermercados
- Comércio
- Escolas Públicas
- Farmácia
- Hospital
- Ponto de Oníbus
- Posto de Gasolina
- Posto de Saúde
